Vente Local commercial GRADIGNAN
30 000 € HAI - 300 m2 - Réf. 33_0158
Vente - global.cession-de-bail - Local commercial
GRADIGNAN
30 000 € HAI
Prix Honoraires Inclus : 30 000 €
Honoraires : 100,00% TTC*
* Les honoraires d'agence seront intégralement à la charge de l'acquéreur
  • 300 m2

RARE - LOCAL COMMERCIAL NEUF

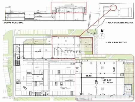
Clever Real Estate vous propose cette location avec droit d'entrée situé au sein d'un nouveau retail park accueillant des enseignes commerciales, la cellule commerciale a une superficie de 300 m² environ. Livraison prévisionnelle fin 2025.
Divisibilité : global.local-commercial , Surface minimum :
Loyer annuel : 35 €
  • Référence : 33_0158
  • Ville : GRADIGNAN
  • Transaction : Vente
  • Type de bien : Local commercial
  • Prix HAI : 30 000 €
  • Charges annuelles : 15 924
  • Surface : 300 m2
Performance énergétique (en KWh/m2/an)
Dpe
Performance climatique (en Kg éq CO2/m2/an)
Ges
Montant estimé des dépenses annuelles d’énergie pour un usage standard : année de référence - de 0€ à 0€
%
%

Vos mensualités

*apport calculé sur une base de 20%

Informations non contractuelles, fournies à titre indicatif
33 - Gironde
Montant En % du prix du bien
Emoluments notaire %
Copies & formalités notaire 800 %
Total notaire %
Droits de mutation 5.80%
Publicité foncière 0.10%
Debours 400 %
TVA (sur part notaire) %
Total %
Informations non contractuelles, fournies à titre indicatif
Contactez-nous
* champs obligatoires
Biens similaires
Clever Real Estate

63, rue Lucien Faure - BP70157
33042 Bordeaux Cedex

Voir le téléphone
  • Alerte email
  • Favoris 0
  • 0