Vente Local commercial BEGLES
30 000 € HAI - 651 m2 - Réf. 33_0152
Vente - global.cession-de-bail - Local commercial
BEGLES
30 000 € HAI
Prix Honoraires Inclus : 30 000 €
Honoraires : 100,00% TTC*
* Les honoraires d'agence seront intégralement à la charge de l'acquéreur
  • 651 m2

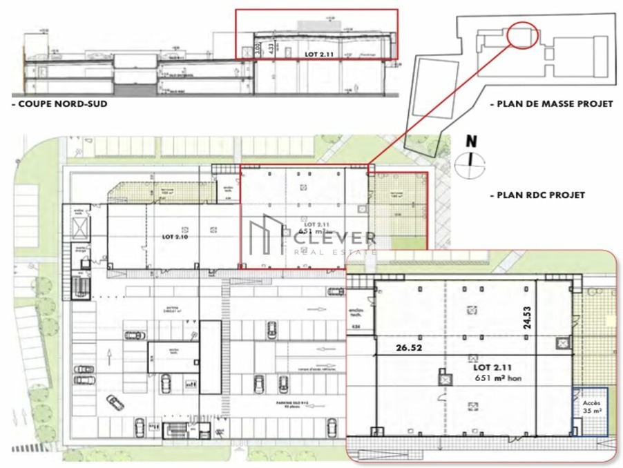
LOCAL COMMERCIAL DEDIE A LA RESTAURATION

Clever Real Estate vous propose cette location avec droit d'entrée situé sur la zone de Rives d'Arcins une cellule commerciale d'une superficie de 651 m² environ et une terrasse de 180 m² Disponible immédiatement
Divisibilité : global.local-commercial , Surface minimum :
Loyer annuel : 35 €
  • Référence : 33_0152
  • Ville : BEGLES
  • Transaction : Vente
  • Type de bien : Local commercial
  • Prix HAI : 30 000 €
  • Charges annuelles : 22 788
  • Surface : 651 m2
Performance énergétique (en KWh/m2/an)
Dpe
Performance climatique (en Kg éq CO2/m2/an)
Ges
Montant estimé des dépenses annuelles d’énergie pour un usage standard : année de référence - de 0€ à 0€
%
%

Vos mensualités

*apport calculé sur une base de 20%

Informations non contractuelles, fournies à titre indicatif
33 - Gironde
Montant En % du prix du bien
Emoluments notaire %
Copies & formalités notaire 800 %
Total notaire %
Droits de mutation 5.80%
Publicité foncière 0.10%
Debours 400 %
TVA (sur part notaire) %
Total %
Informations non contractuelles, fournies à titre indicatif
Contactez-nous
* champs obligatoires
Biens similaires
Clever Real Estate

63, rue Lucien Faure - BP70157
33042 Bordeaux Cedex

Voir le téléphone
  • Alerte email
  • Favoris 0
  • 0